GUCH OFFICE DESIGN
Thursday, 10 May 2012
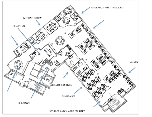
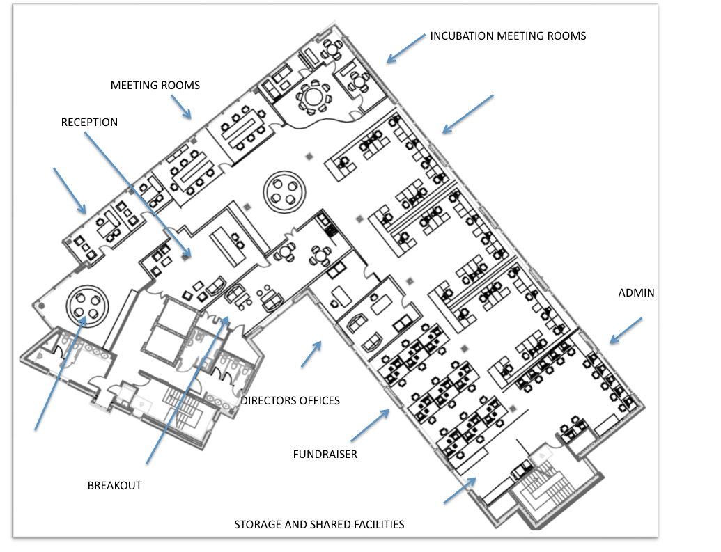
Office Design for a charity called GUCH. The idea was to create a new brand and logo and design an interior space of the office. My concept was DREAM BIG. I used a blue and red colour pallet throughout my design, blue is known as a color that soothes and treats pain therefore it is an ideal color to use.
Subscribe to:
Post Comments (Atom)
Blog Design by The Blog Store












This comment has been removed by the author.
ReplyDelete