Home
About Me
Contact
Work With Me
Work Experience
Decor
Inspiration
Accessories
Homeware
Home Furnishings
Shop My Style
Bedroom
Living Room
Office
DIY
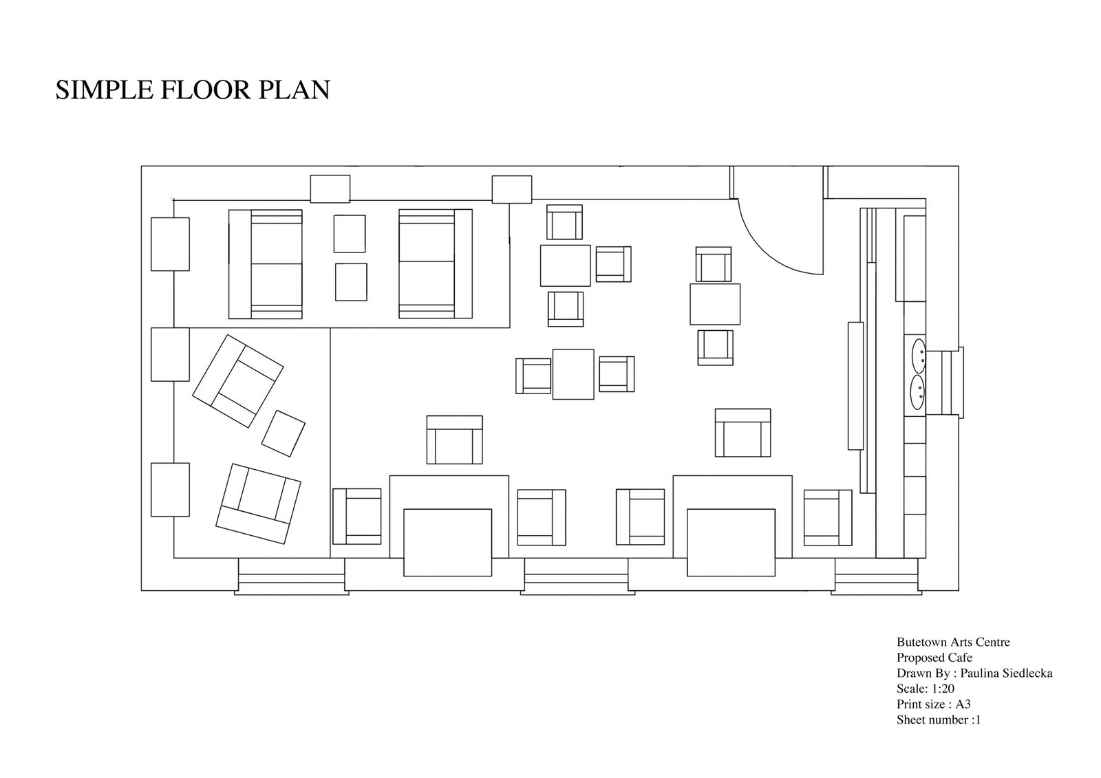
Butetown Cafe Design
Sunday, 27 March 2011
Brief : Create a proposal for the Cafe space: Create a community Cafe / Social Space.
No comments
Post a Comment
Newer Post
Older Post
Home
Subscribe to:
Post Comments (Atom)
Search:
Instagram:
Powered by
Blogger
.
Top Hits
Home Decor
BRIGHT COLOURS INTERIOR TREND 2014
MODERN BEDROOM BASIC FLOOR PLAN
Future Work Place 2030 Design
CELIA SAWYER INTERVIEW & HER LATEST BEAUTIFUL VANQUISH PROJECT
Followers
«
»
Blog Design by
The Blog Store
No comments
Post a Comment